Ponte Nelle Alpi - Unifamiliare Casa singola
Rif : 43-167
Indirizzo :
via garibaldiPonte Nelle Alpi
Area : Soccher
Conforts :
- TerrazzoAbitabile
- Soggiorno
- postoauto
- Soffitta
- cantina
- garage
- arredamento
- cucina
- SalaPranzo
- Taverna
- Ripostiglio
- giardino-carrabile
Informazioni finanziarie :
| Prezzo | 420 000 € |
|---|
Dettagli :
| Condizioni della proprieta' | Ottimo |
|---|---|
| Numero di camere da letto | 3 |
| Numero di bagni | 2 |
| Tipo di riscaldamento | autonomo |
| Classe | n/d |
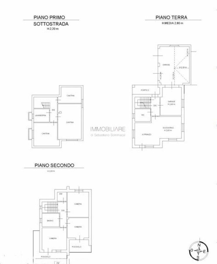
Villetta singola ed indipendente in zona residenziale, a Soccher di Ponte Nelle Alpi, in posizione strategica per i comodi collegamenti all'autostrada, Ponte Nelle Alpi, Longarone e Vittorio Veneto.
La casa si presenta in perfette condizioni, con grande cura del dettaglio e si compone di un ingresso ampio e luminoso che introduce a una spaziosa zona giorno, impreziosita da una meravigliosa stube proprio in centro al fabbricato.
La cucina, affiancata dalla zona pranzo, si presenta comoda e godibile, con vista sul giardino esterno e con una penisola che permette di avere un interazione costante con eventuali ospiti.
Al piano terra trovano spazio anche un garage con ottime finiture, utilizzato attualmente come "locale jolly" poiché accessibile direttamente dall'ingresso, ed un ampio bagno.
Salendo al primo piano attraverso una pregiata scala in legno si trova un ripostiglio - ufficio, l'ampia camera matrimoniale dotata di terrazzo ad angolo, camera doppia mansardata ed ulteriore camera matrimoniale con terrazzo coperto molto generoso ed affacciato sul giardino.
Il piano si completa con un grande bagno diventando ideale per una famiglia numerosa.
Attraverso una comoda botola si accede alla soffitta sottotetto finestrata, di generose dimensioni.
Il livello seminterrato ospita due ampie cantine, la lavanderia ed una taverna comoda per rilassarsi in compagnia.
Ulteriore doppio garage esterno da completare ma già utilizzabile.
Giardino esterno indipendente e ben curato.
Caldaia a metano.
PLUS DA SEGNALARE:
- cappotto esterno
- cisterna interrata per il recupero delle acque piovane derivanti dalle grondaie del tetto
- tapparelle primo e secondo piano centralizzate elettriche e comandate dal piano terra
- aspirapolvere centralizzato
- impianto elettrico selettivo per eventuali guasti
- predisposizione per eventuale parabola
- predisposizione per antifurto
- predisposizione per impianto solare
CLASSE ENERGETICA IN DEFINIZIONE

