Rocca Pietore - Hotel-Albergo-Pensione
Rif : 310-34
Indirizzo :
Località DigoneraRocca Pietore
Conforts :
- postoauto
- garage
- arredamento
- ascensore
Informazioni finanziarie :
| Prezzo | 895 000 € |
|---|
Dettagli :
| Condizioni della proprieta' | Buono |
|---|---|
| Numero di stanze | 30 |
| Numero di bagni | 25 |
| Tipo di riscaldamento | centralizzato |
| Classe | D |
| IPE | 141.6 kWh/m2anno |
Vendesi in località Digonera in Comune di Rocca Pietore, (BL), Hotel 3 stelle posizionato lungo la strada provinciale 563, in buone condizioni di manutenzione generale, attualmente gestito come B&B dalla storica famiglia proprietaria dell’immobile fin dal 1938.
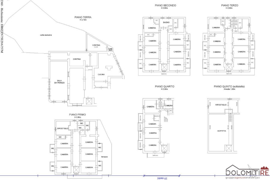
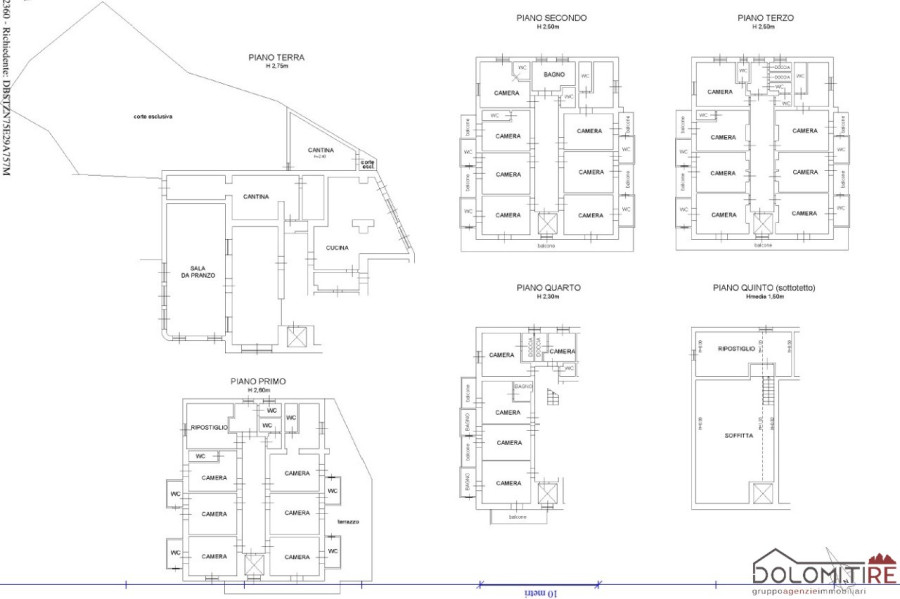
L’hotel dispone di bar con 20 Posti a sedere, ristorante con 80 posti a sedere, 22 camere per complessivi 46-50 Posti letto, un appartamento per alloggio del gestore.
L’immobile è provvisto di ascensore e sauna per 4 persone. N. 3 posti auto interni e 10 Posti auto esterni.
L’immobile, risalente agli anni 20 è stato soggetto di ampliamento e continue ristrutturazioni secondo i criteri del buon padre di famiglia. Attualmente è sottoutilizzato come B&B per 25 posti letto in quanto l’edificio necessita di alcuni adeguamenti a livello di prevenzione incendi che permettano il pieno utilizzo dell’intera capienza.
Il piano terra che ospita la reception, il bar, il ristorante, il magazzino e la cucina sono di recente ristrutturazione come buona parte delle camere da letto.
Il prezzo non comprende la società di gestione / avviamento, comunque disponibili in vendita.
La località di Digonera è in posizione centrale delle Dolomiti con la possibilità di accesso alle piste da sci del comprensorio del Dolomiti Superski a soli 15 minuti dalla Marmolada e Alleghe, 20 minuti da Arabba e 40 da Cortina d’Ampezzo. Durante la stagione estiva con una media di 30 minuti in auto si raggiungono alcuni dei più famosi passi Dolomitici come il passo Pordoi, Passo Fedaia, Passo Falzarego, Passo Giau, Passo Campolongo e Passo Valparola. Tutte la zone delle Dolomiti , Patrimonio Naturale UNESCO, in questi anni registrano un costante aumento, sviluppo ed incremento turistico legato all’offerta sempre più ampia, sia durante la stagione invernale che quella estiva. Sciatori, camminatori, arrampicatori, naturalisti, ciclisti, motociclisti nonché persone che hanno necessità di staccare la spina e di godere di aria pura e silenzio, trovano ristoro e soddisfazione in questa fantastica zona montana.
Non da ultimo, la zona è compendio delle Olimpiadi invernali del 2026. Questo importantissimo evento darà un’ulteriore futura spinta alla domanda turistica a livello mondiale.

