Rocca Pietore - Rustico-Casolare-Cascina
Rif : 306-34
Indirizzo :
Località SorarùRocca Pietore
Area : Soraru'
Conforts :
- postoauto
- giardino-carrabile
Informazioni finanziarie :
| Prezzo | 150 000 € |
|---|
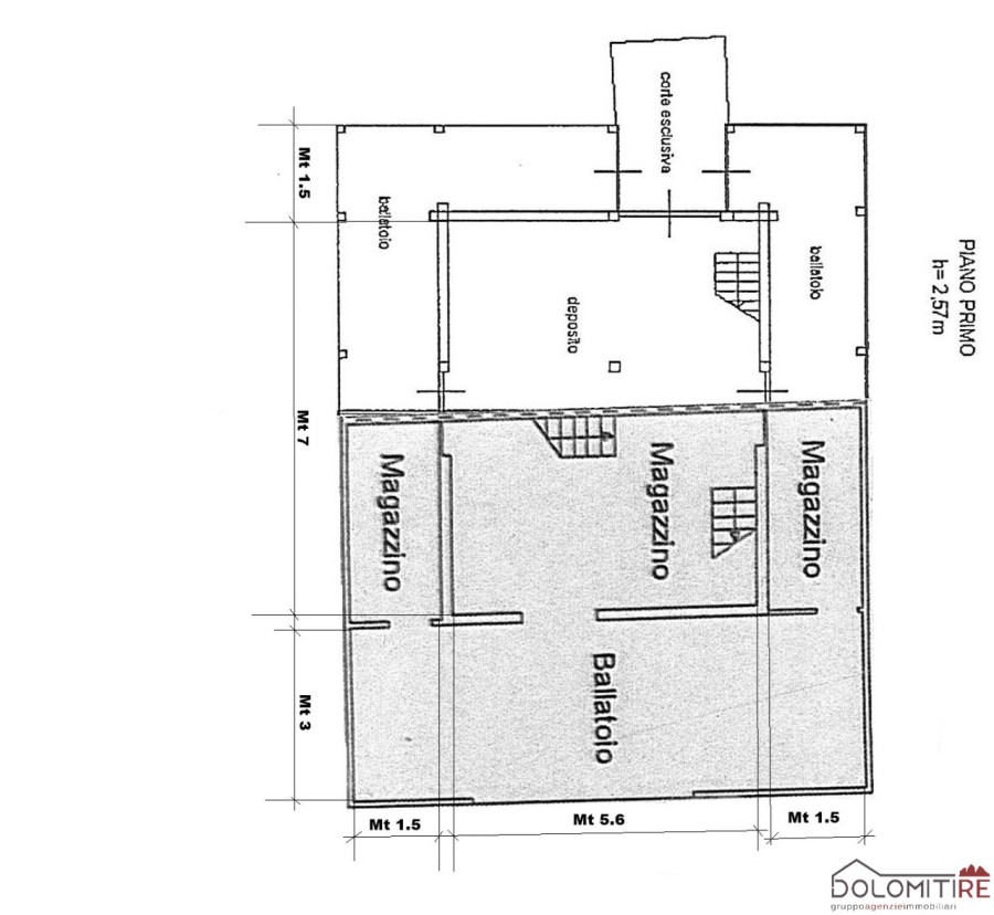
Dettagli :
| Condizioni della proprieta' | Da ristrutturare |
|---|---|
| Numero di stanze | 5 |
| Numero di camere da letto | 1 |
| Numero di bagni | 1 |
| Tipo di riscaldamento | nd |
| Classe | n/d |
Nel cuore del borgo autentico di Sorarù, ( https://maps.app.goo.gl/TGsHFZ7ZBSSostKw8 ) in comune di Rocca Pietore (BL), dove il tempo sembra essersi fermato, sorge un’opportunità rara: un antico rustico con giardino e area parcheggio, che aspetta solo di tornare a splendere. Immagina di svegliarti circondato dal silenzio delle vette, con le Dolomiti a farti da cornice e il profumo del legno che riscalda i tuoi inverni.
A soli 10 minuti dalle piste del Dolomiti Superski, dal Lago di Alleghe e Comprensorio sciistico del Civetta, questo immobile è la tela bianca perfetta per chi sogna una dimora in bioedilizia che unisca il fascino della tradizione alpina al comfort moderno. Un investimento emotivo e patrimoniale destinato a rivalutarsi nel tempo.
Il mercato dei rustici alpini è in fase di chiusura: le normative attuali proteggono sempre più questi immobili, rendendo le trasformazioni in abitazioni delle vere e proprie rarità.
DETTAGLI TECNICI:
• Potenziale: Sviluppo di più unità abitative (ideale per vendita o affitti brevi).
• Flessibilità: Possibilità di recupero conservativo o demolizione e ricostruzione fedele.
Investire qui oggi significa possedere un bene che diventerà introvabile. Un'operazione immobiliare sicura in una delle aree più ambite dell'Arco Alpino.
PUNTI DI FORZA:
• Autenticità: Struttura originale nel caratteristico borgo di Sorarù di Rocca Pietore.
• Libertà: Possibilità di cambio d'uso e ristrutturazione su misura.
• Location: Posizione logistica perfetta tra il monte Civetta e la Marmolada.
• Natura: Nel centro delle Dolomiti, la natura incontaminata, non ha bisogno di presentazioni.

