Belluno - Schiera di testa
Rif : 304-34
Indirizzo :
Via FiammoiBelluno
Conforts :
- Soggiorno
- garage
- cucina
- Ripostiglio
- Mansarda
Informazioni finanziarie :
| Prezzo | 295 000 € |
|---|
Dettagli :
| Condizioni della proprieta' | Buono |
|---|---|
| Numero di stanze | 9 |
| Numero di camere da letto | 3 |
| Numero di piani | 2 |
| Numero di bagni | 2 |
| Tipo di riscaldamento | autonomo |
| Classe | G |
COMPRI UNO, PRENDI DUE !
Proponiamo in vendita un'ampia e luminosa casa a schiera di testa, situata nel comune di Belluno, in Via Fiammoi. L'immobile, si sviluppa su tre livelli con una superficie di 196 mq. commerciali ed è composto da 9 locali, di cui 3 camere da letto, 2 bagni, due cucine abitabili e due accoglienti soggiorni.
L'immobile è stato concepito per avere la possibilità di poter usufruire separatamente della mansarda, composta da cucina-soggiorno-camera e bagno. L'ingresso separato e la divisione degli impianti la rende adatta anche per l'affitto (utile per abbattere la rata dell'eventuale mutuo bancario)
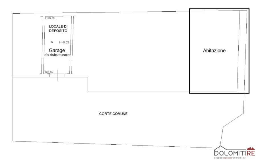
La proprietà dispone inoltre di un locale di deposito di ben 30 mq utilizzabile come garage e di un ampio giardino privato di 220 mq., ideale per chi ha il "pollice verde" o per gli amanti del barbecue, nonché per trascorrere piacevoli momenti all'aria aperta.
La zona di Fiammoi, nella prima periferia di Belluno è ben servita, tranquilla, e sufficientemente distante dalle vie principali di traffico.
L'immobile è stato recentemente restaurato negli anni 2007 e 2016
Non esitate a contattarci per ulteriori informazioni o per fissare un appuntamento di visita.

